富士市移住コトハジメ > 富士市の移住定住お役立ち情報 > 暮らしに関する情報 > 空き家バンク > 新富士駅・富士駅周辺(西エリア) > 物件No.96 富士市八幡町1-23
ここから本文です。
物件No.96 富士市八幡町1-23
更新日:2026年1月19日
目次
![]() |
![]() |
|
|
|
おすすめポイント |
|
スーパー近く、徒歩圏内に駅もあり住みやすい環境。 |
|
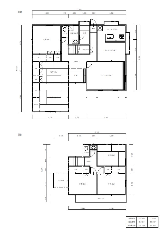
物件種類 |
売買 |
|---|---|
|
価格 |
1900万円 |
|
築年数 |
昭和56年建築 |
|
間取り |
7DK |
|
敷地面積等 |
木造2階建て |
|
地域 |
新富士駅・富士駅周辺(西エリア) |
|
住宅の設備等 |
電気、都市ガス、上水道、下水道、駐車場有 |
|
所在地 |
富士市八幡町1-23(地番八幡町86-5) |
|
主要施設等への距離 |
最寄りの駅 東海道本線 富士駅 1300m |
|
耐震診断 |
未実施 |
|
取扱い宅建業者 |
(株)大銀 |
注意事項
富士市は、この空き家バンクに掲載されている物件の売買・賃貸借に関する契約に関与いたしません。
つきましては、契約やその後のトラブルを防ぐため、宅地建物取引業法に規定する宅地建物取引業者による仲介をおすすめいたします。
お問い合わせ先
営業時間 9時00分~17時00分(平日)
※掲載されている情報は2026年1月19日現在のものです。






![旅色 -富士市[静岡県]-](/shared/site_kotohajime/images/main/banner4.jpg)

